Bungalovy

Domů ›   Realizace   ›   Bungalovy

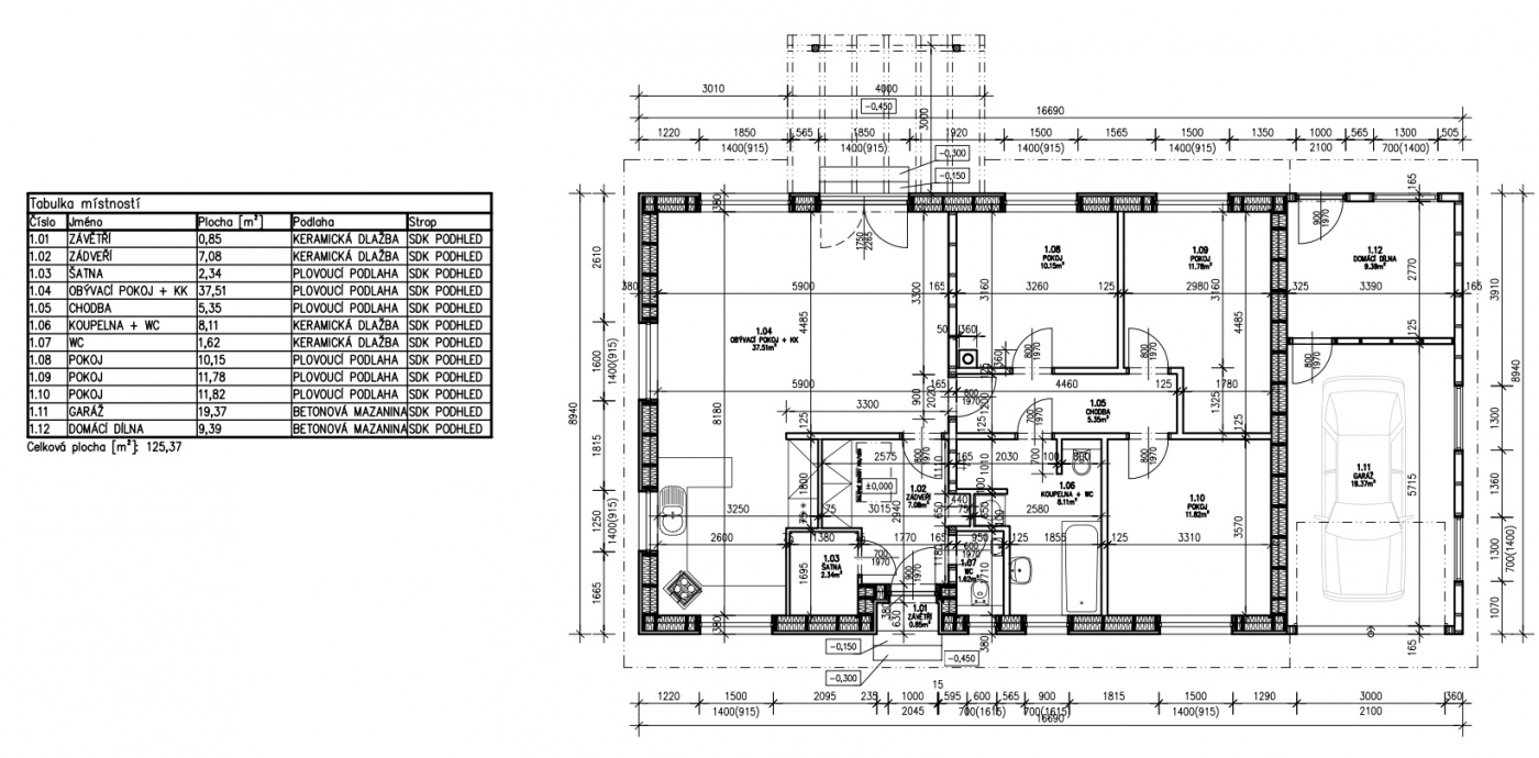
Dřevostavba bungalov Stětí 2016 Dřevostavba bungalo Štětí 2016 Menší dřevostavba pro rodinu s malými dětmi a pejskem. Stavěli jsme v klidné části Štětí obklopené přírodou a lesy. Dřevostavba byla původně navržena a vyprojektována i s garáží. Tu jsme nakonec, ale po dohodě s majiteli v první fázi nerealizovali s tím, že majitelé spíše vybudují otevřený přístřešek na auto.

    +420 603 449 540