Bungalovy

Domů ›   Realizace   ›   Bungalovy

Dřevostavba Bungalov Brníkov 2019 Dřevostavba bungalov Brníkov 2019 Dřevostavba pro starší pár, který odcházel do důchodu a přál si žít poblíž své rodiny. Na zahradě u dcery tak vyrstl menší komfortní bungalov s valbovou, ke kterému postupně přibylo velkorysé zastřešené garážové stání. Zbylé zázemí jako je zahradní domek, dílna a venkovní kuchyně už si majitelé budovali a radostí sami a musíme uznat, že výsledek je dokonalý.

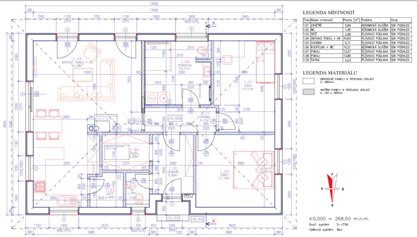
Půdorys bungalovu
Vizualizace bungalovu
Dřevostavba výstavba
Nová kuchyně dřevostavby
Garážové stání
    +420 603 449 540