Bungalovy

Domů ›   Realizace   ›   Bungalovy

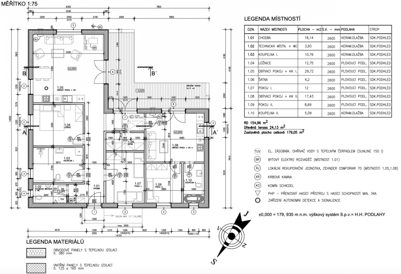
Dřevostavba bungalov Kly u Mělníka 2022 Dřevostavba bungalov Kly u Mělníka 2022 Tento moderní bungalov s netypickou střechou vyrostl na předměstí Mělníka. Zákaznice nejprve chtěla stavět větší dům, ale nakonec z osobních důvodů nechala projekt překreslit a dům, na který již bylo vyřízené stavební povolení se zmenšoval. Dům je členitý, uvnitř jsou prakticky dvě samostatné bytové jednotky, tak aby zákaznice a její dospívající syn měli každý svoje soukromí.

Půdorys dřevostavby
Vizualizace bungalovu
Vizualizace bungalovu
Vizualizace dřevostavby
Výstavba dřevostavby
Výstavba bungalovu
    +420 603 449 540