Bungalovy

Domů ›   Realizace   ›   Bungalovy

Dřevostavba bungalov Ledčice 2015 Dřevostavba bungalov Ledčice 2015 Majitelé se pro nás rozhodli ve chvíli, kdy jsme zhotovili náš první dům v Ledčicích a to pro sestru majitelky. Protože nás při výstavbě měli možnost sledovat a měli na nás od sestry dobré reference, rozhodli se stavbu své malé dřevostavby svěřit také nám. Majitelé si přáli na důchod odejít u Prahy a nechali si postavit bezúdržbový a na náklady nenáročn dům.

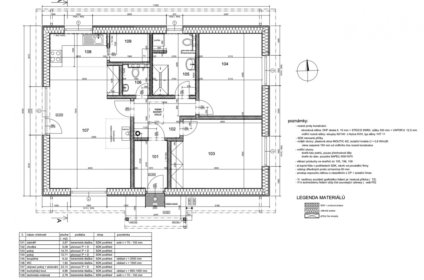
Půdorys dřevostavby
Vizualizace bungalovu
Prostor dřevostavby Ledčice
Kuchyň
Vstup do dodmu
Před dokončením
Před dokončením
    +420 603 449 540