Bungalovy

Domů ›   Realizace   ›   Bungalovy

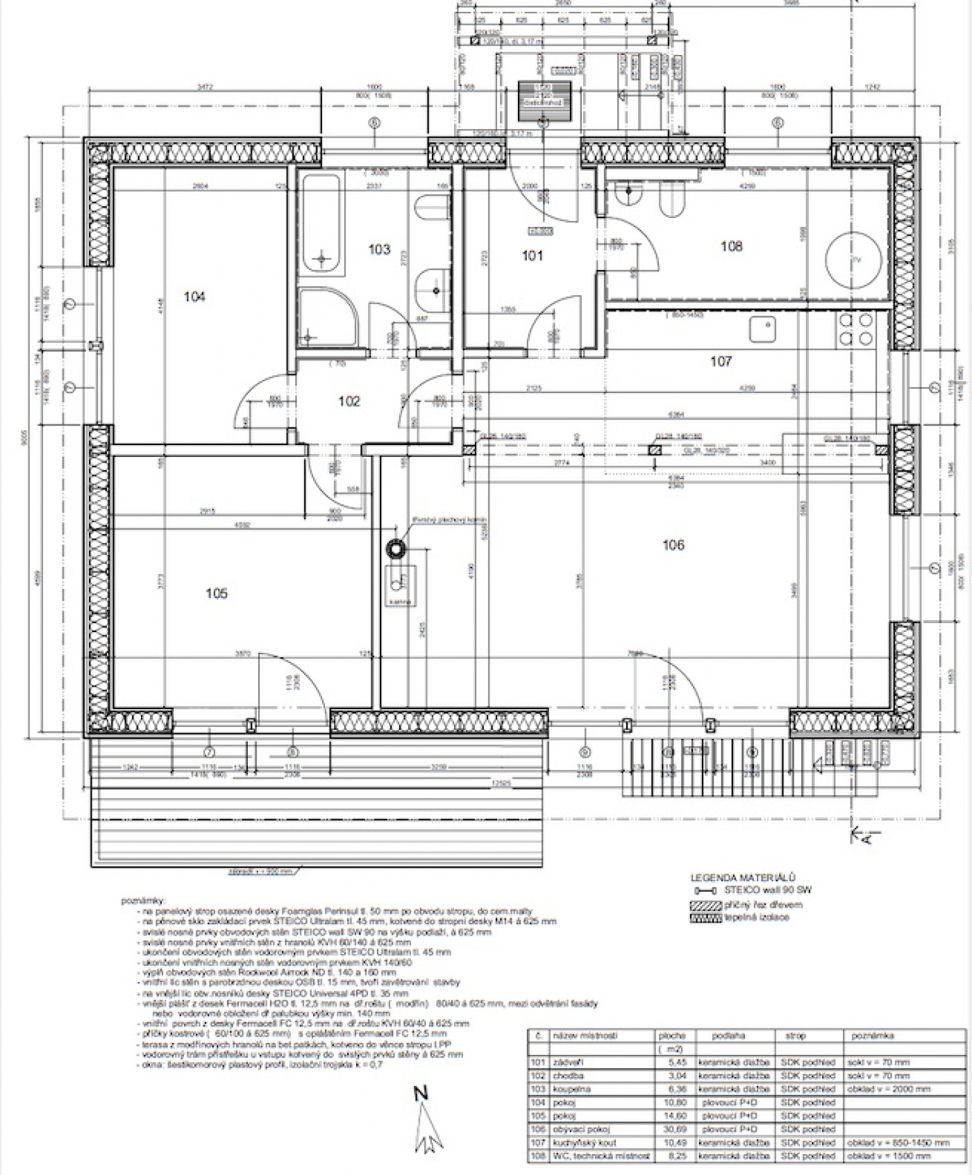
Dřevostavba bungalov Liberec 2015 Dřevostavba bungalov Liberec 2015 Náš první zrealizovaný pasivní dům. Majitel byl technik z oboru a podílel se na výstavbě Ještědu a byl tedy velmi náročný na technické provedení, projekt dřevostavby si celý vymyslel a nakreslil sám a nechal si ho pouze autorizovat. Přál si na důchod opustit panelákový byt a přestěhovat se do přírody a postavit tak dům, který bude přísně v jejím souladu. Vzhledem ke svažitosti a složitosti pozemku byl dům částečně podsklepen a ve výšce obývacího pokoje tak vznikl "balkon" tj. prostorná terasa s výhledem do zahrady a okolní přírody.

Půdorys bungalovu
Vizualizace bungalovu
Výstavba dřevostavby
    +420 603 449 540