Bungalovy

Domů ›   Realizace   ›   Bungalovy

Dřevostavba bungalov Litoměřice 2016 Dřevostavba bungalov Litoměřice 2016 Příjemná dřevostavba pro manažerský pár s odrostlými dětmi, který se rozhodl prodat byt v centru města a užívat si klidu a přírody. Majitel vlastní elektrikářskou firmu, přesto jsme se domluvili, že veškeré elektroinstalace zhotovíme s našimi lidmi, protože znají problematiku naší technologie, která je náročná na spoustu technických detailů a je potřeba dodržet dané postupy. Majitel si tyto práce nenchal ale ujít a rád se zájmem u nich asistoval. Pro majitele jsme pak ještě zhotovili dřevěnou venkovní terasu.

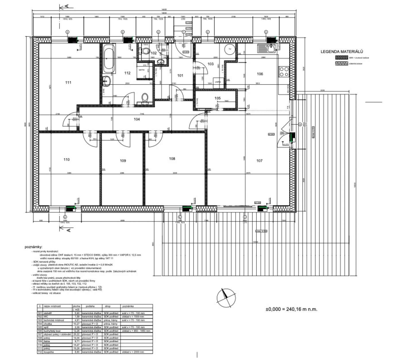
Půdorys dřevostavby
Vizualizace dřevostavby
Výstavba dřevostavby
Finální dřevostavba
Finální bungalov
Dřevostavba Pokratice
    +420 603 449 540