Bungalovy

Domů ›   Realizace   ›   Bungalovy

Dřevostavba bungalov Nebovidy 2014 Dřevostavba bungalov Nebovidy 2014 Dům vyrostl na zahradě u prarodičů, kteří tak budou mít možnost trávit více času s vnoučaty. Jedná se o moderní členitou dřevostavbu, kde je dlouhou prosklenou chodbou oddělena denní a noční část domu. Moderní vzhled dřevostavby je umocněn specifickými pultovými střechami bez přesahů, které navíc v interiéru umožnili přiznat strop až do výšky krovů a vytvořit tak opticky větší místnosti.

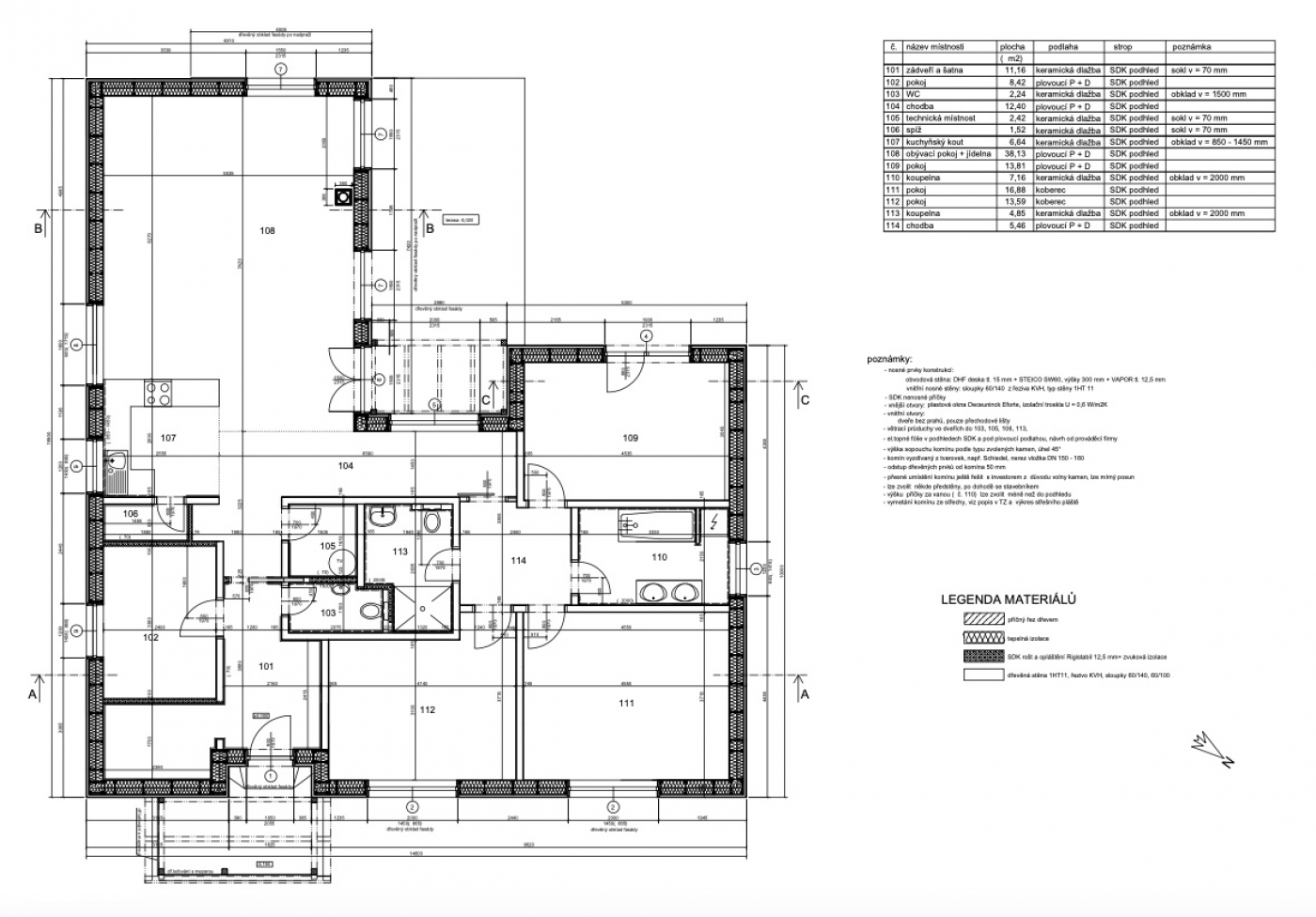
Půdorys dřevostavby
Vizualizace bungalovu
Vizualizace dřevostavby
Vizualizace dřevostavby Nebovidy
Výstavba dřevostavby
    +420 603 449 540