Bungalovy

Domů ›   Realizace   ›   Bungalovy

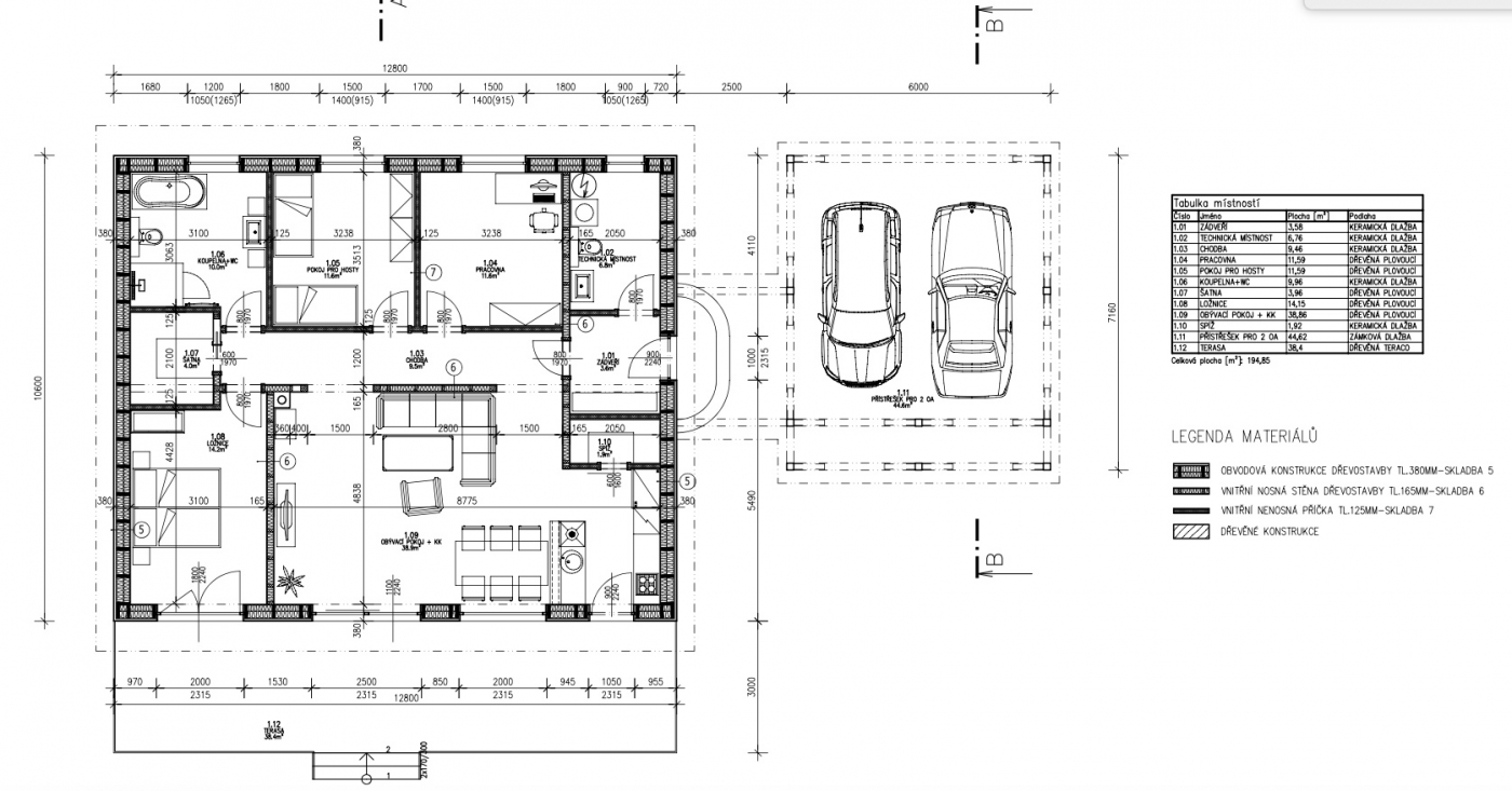
Dřevostavba bungalov Píšťany 2020 Dřevostavba bungalov Píšťany 2020 Tatol dřevostavba se nachází v povodňovém pásmu v navíc CHKO, bylo tedy třeba splnit několik podmínek tžzv. vyšší skoln střechy a základovou desku ve výšce 1,5m nad rostlým terénem. Vysoká základová deska na druhou stranu dala po dohodě s majiteli vzniknout podsklepené části dřevostavby. Dřevostavba byla zákazníkem zažizována ve venkovském stylu a návozem terénu k obývací části, vznikla prostorná vyvýšená terasa, kde majitelé odpočívají a kochají se výhledem na Labe a zahradz, která je pod úrovní.

Vizualizace bungalovu
Vizualizace dřevostavby
Finální dům Píšťany
Chodba bungalovu
    +420 603 449 540