Bungalovy

Domů ›   Realizace   ›   Bungalovy

Dřevostavba Bungalov Štětí 2023 Malá dřevostavba pro manžele v důchodu vyrostla na místě původní chaty, která už neplnila dostatečně svou funkci. Stávající objekt byl tedy na základě povolení stavebního úřadu odstraněn a jeho místo zaujala malá nízkoenergetická dřevostavba, která splňuje nároky majitelů o jednoduše provozovatelném a kvalitním víkendovém domě, kde se mohou scházet se širší rodinou.

Vizualizace bungalovu
Vizualizace bungalovu
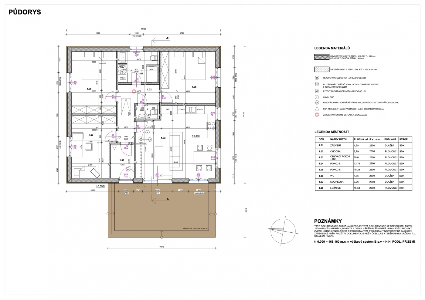
Půdorys
Výstavba
Mareš
Mareš
Mareš
Mareš
    +420 603 449 540