Bungalovy
›
Realizace
›
Bungalovy
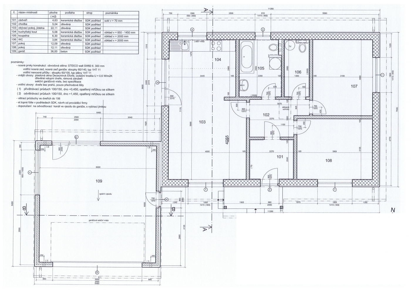
Dřevostavba bungalov Veltrusy 2014
Domů
O nás
Kontakty
Kontaktní formulář
Reference
Realizace
Bungalovy
Patrové domy
Atypické domy
Tiny house
Konstrukce
Konstrukční panel DBH
Princip vytápění
Certifikáty
Novinky
+420 603 449 540