Bungalovy

Domů ›   Realizace   ›   Bungalovy

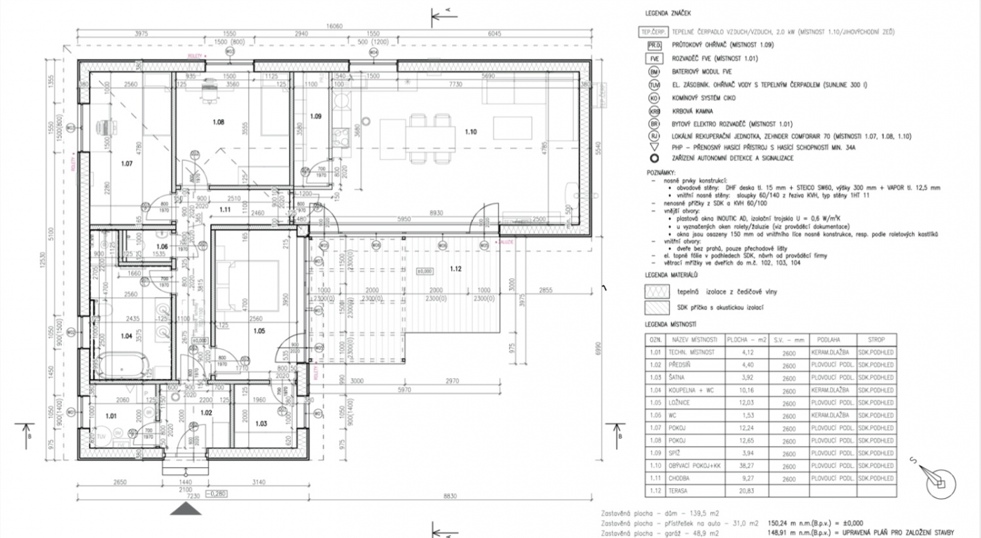
Dřevostavba bungalov Žalhostice 2022 Dřevostavba bungalov Žalhostice 2022 Tato dřevostavba se nachází v nové zástavbě rodinnými domy v Žalhosticích. Jedná se o komfortní a prostornou dřevostavbu bungalov s velkými prosklenými plochami, posuvné skleněné portály ústí na dřevěnou terasu se zimní zahradou, kterou jsme po dohodě s majiteli dřevostavby realizovali také my. Dále jsme se domluvili na realizaci venkovních zpevněných ploch v litém betonu v kombinaci s kamínky, provedli jsme terénní úpravy a oplocení pozemku plotem s prefabtrikovaných betonových dílů s plotovou výplní z modřínu.

    +420 603 449 540