Patrové domy

Domů ›   Realizace   ›   Patrové domy

Final Dřevostavba patrová Dolní Týnec 2022 Neotřelý koncept víkendového domu pro rodinu se třemi malými dětmi v krásné krajině plné lesů. Dům byl původně koncipován jako přízemní bungalov, ale nakonec byla na přání majitelů za průběhu stavby učiněna změna a dům se souhlasem stavebního úřadu rozrostl ještě o nadezdívku, která dala vzniknout vzdušnému mezonetu. Protože dům je postaven uprostřed přírody, přáli si majitelé, aby fasáda byla také celá dřevěná a dům tak postupně po jejím přirozeném zešednutí, splynul s okolní krajinou. Protože na zahradě bude vysázena louka a k filozofii domu a zahrady by se tak nehodily klasické zámkové dlažby, zrealizovali jsme zpevněné plochy z kamenů, které byly dovezeny z nedalekého lomu. Dále jsme se domluvili, že nepůjdeme cestou klasických stavebních výplní a použijeme náš systém zasklení a dáme tak vzniknout velikému panoramatickému oknu.  

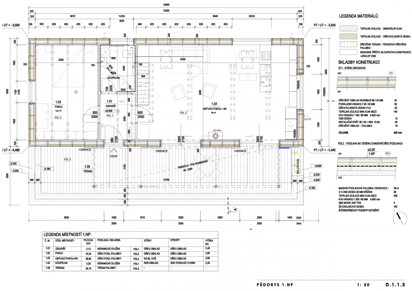
Půdorys I.NP
Půdorys II.NP
Řez
Stavba
Stavba
Stavba
Final
Final
Interiér
    +420 603 449 540