Patrové domy

Domů ›   Realizace   ›   Patrové domy

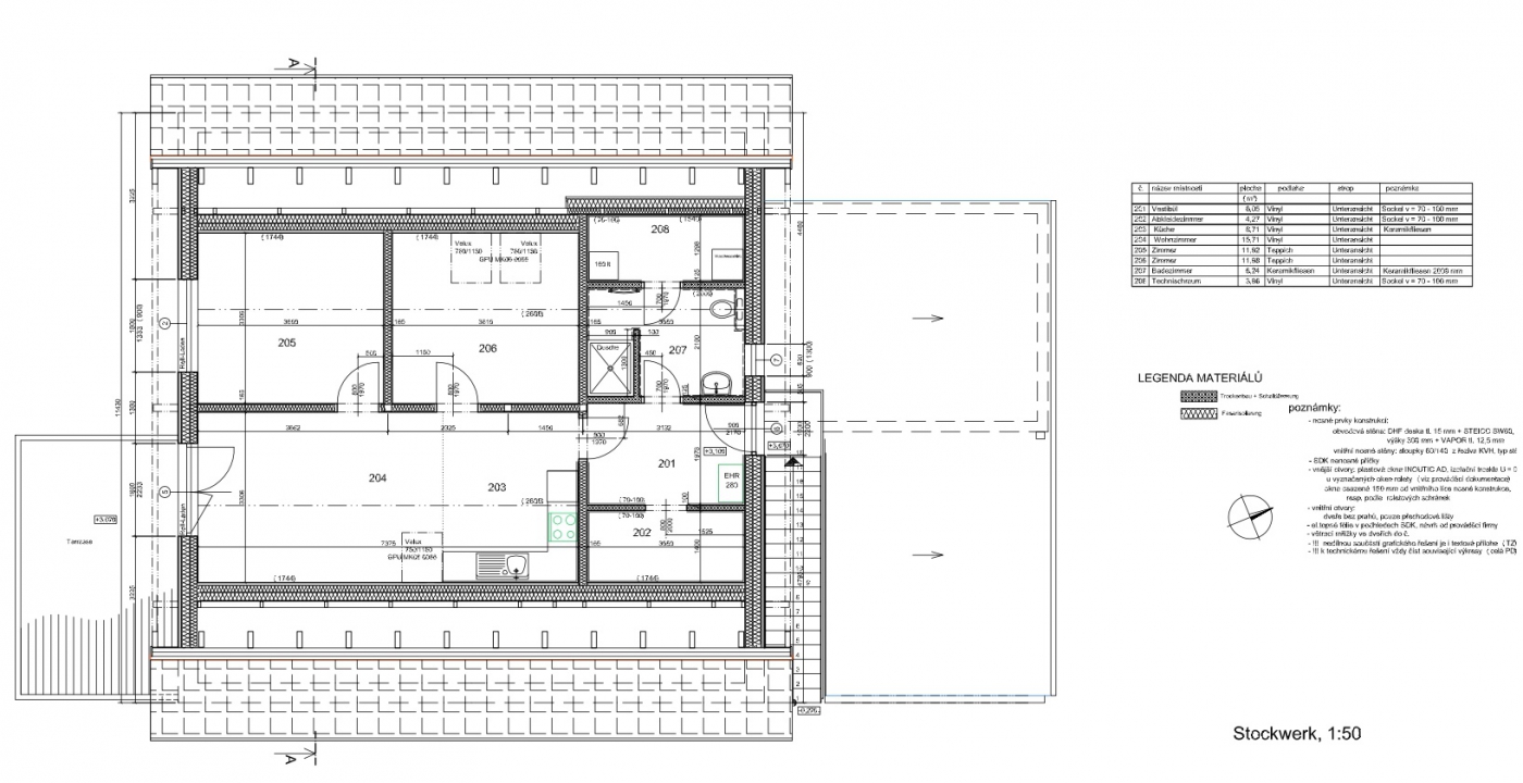
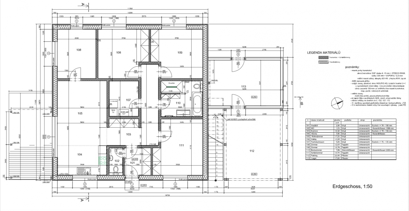
Dřevostavba patrová Pirna 2017 Dřevostavba patrová Pirna 2017 Tuto dvoupatrovou pasivní dřevostavbu jsme stavěli v německé Pirně. Představa zákazníka zněla: přízemní koncipovat jako pohodlné bydlení pro čtyřčlenou rodinu. Druhé patro pak se samostatným vchodem bude sloužit k pronájmu. Ačkoli je dřevostavba klasická vzhledově, byly v něm použity všechny dostupné moderní technologie. Části, kdy se připravoval projekt, stavba samotná už potom běžela jako na drátkách, protože se tentokrát něděly změny na přání klienta v průběhu, vše bylo vyřešeno a promyšleno dopředu.

Průběh stavby
Finální foto
    +420 603 449 540