Patrové domy

Domů ›   Realizace   ›   Patrové domy

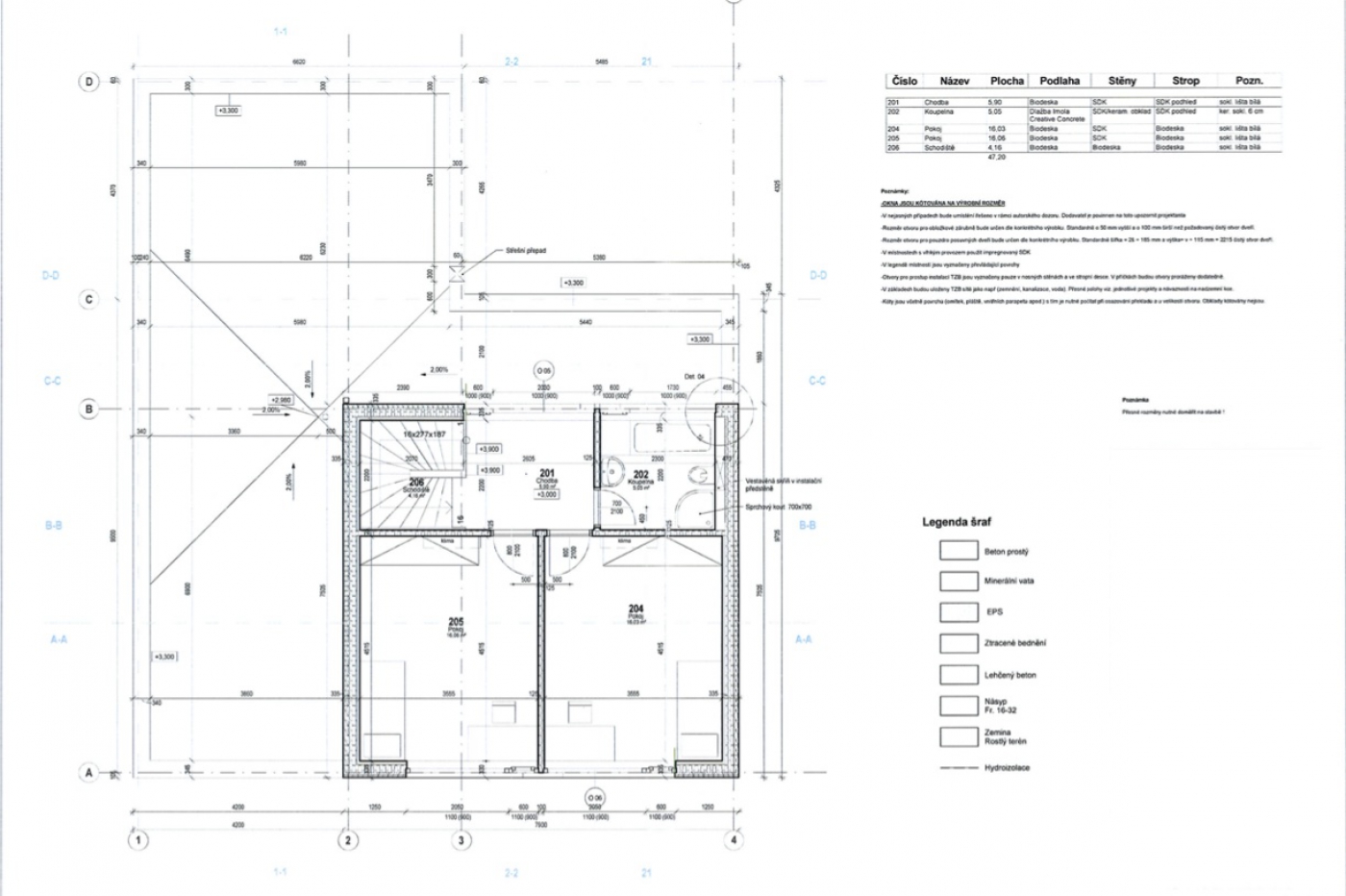
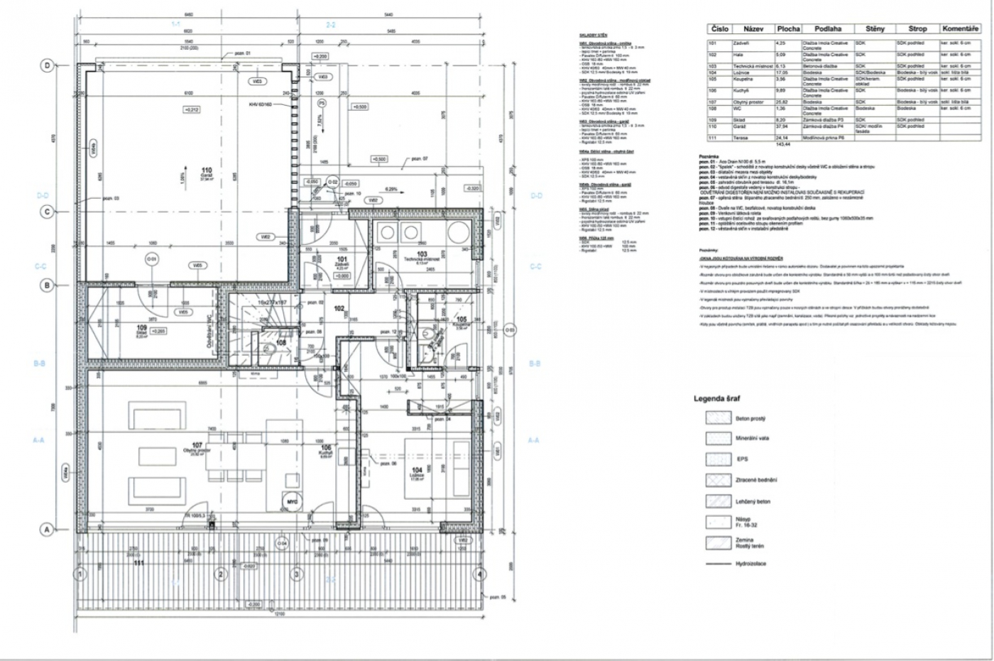
Dřevostavba patrová Statenice 2018 Dřevostavba patrová Statenice 2018 Moderní rodinná dřevostavba pro šestičlennou rodinu se nachází nedaleko Prahy v okrajové části obce. V okolí vzniká ucelená nová zástavba, která rovnou navazuje na okolní lesy a louky.

    +420 603 449 540